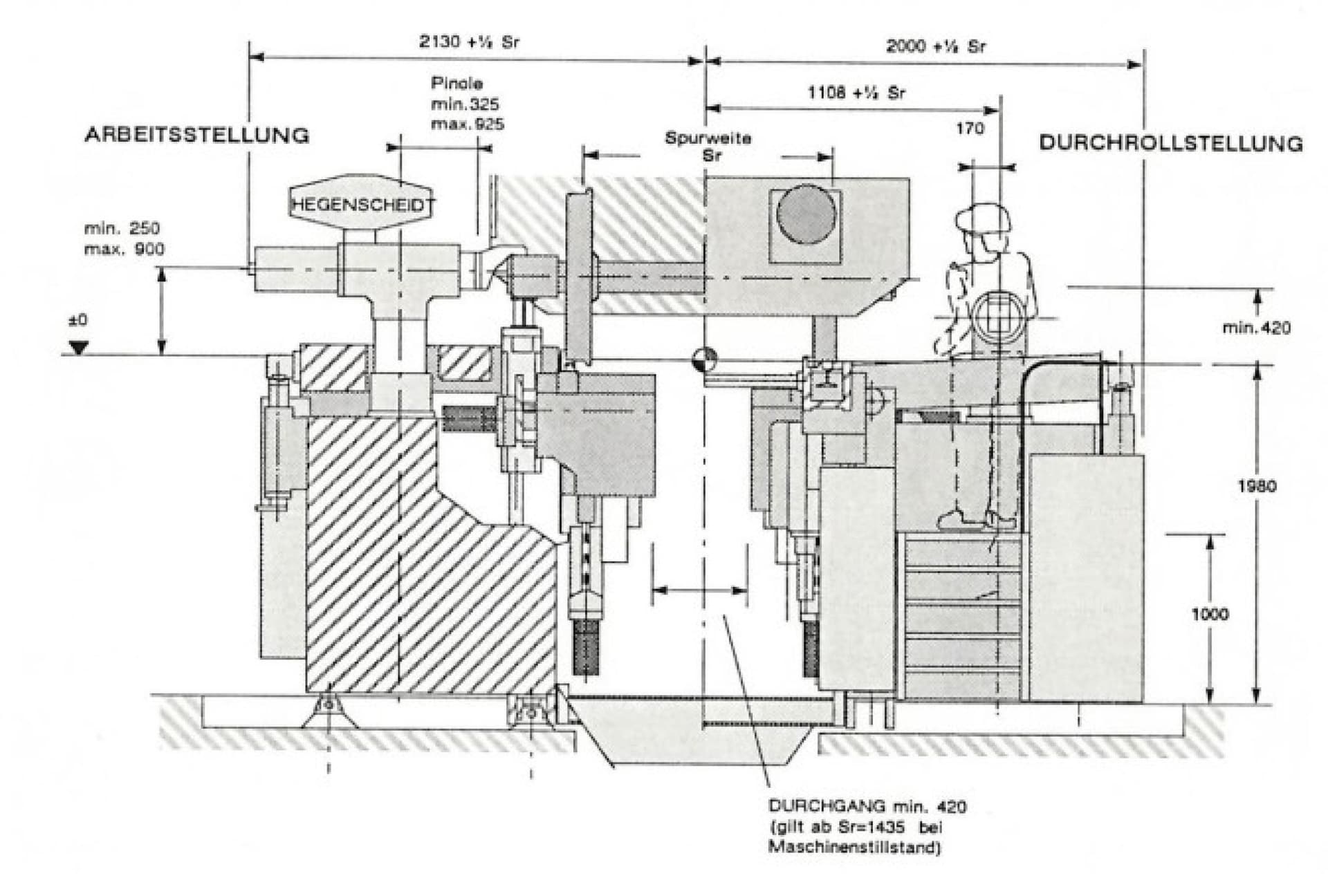
Rail track gauge: 1435mm | Max. wheel tread Ø: 1400mm | Min. wheel tread Ø: 520mm | Max. axle length wheel set: 2450mm | Min. axle length wheel set: 1620mm | Speeds / ranges: 154Rpm | Number of slides: 2 | Power: 44kW | Length: 6000mm | Width: 2200mm | Height: 2600mm | Weight: 33000kg